Small Home Interior Designs

Small Home Interior Designs
Small Home Interior Designs

Best Interior Design 2011

Best Interior Design 2011
Best Interior Design 2011

Home Interior Designs

Home Interior Designs
Home Interior Designs

Living Room Art

Living Room Art
Living Room Art

Interior Design Home

interior design home
interior design home

Your Living Room Is The Place

Your living room is the place
Your living room is the place

Interior Home Designs

interior home designs
interior home designs

Living Room Decorating

Living Room Decorating
Living Room Decorating

Small Home Interior Designs

small home interior designs
small home interior designs

Wall Art

wall art
wall art

Exotic House with Victorian Style

Traditional Victorian House Style – The Skylight House
Here is the inspiring pictures of house design that you can use as the reference in building a new house. More pictures about the house interior design and decoration can be seen below.

Traditional Victorian House Style – The Skylight House
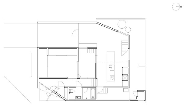
Chenchow Little presents us small house with traditional Victorian style “The Skylight House” in Sydney, Australia. It looks so different and unique. This beautiful house is not too large but with the creative and innovative design, it can be the comfortable house. It is called The Skylight House which has two floors. The interesting thing of this house is that there is a small courtyard with a tree at the center of this house. It gives the fresh impression to the room, especially for living room, dining room and kitchen. It gives the natural light and fresh air to the rooms. There is also small terrace at the second floor; it can be the favorite place for the family to enjoy the natural light.
Traditional Victorian House Style – The Skylight House

Traditional Victorian House Style – The Skylight House

Source: via

Bathroom Decorating Ideas for limited space


Bathroom decorating ideas, especially for a limited space need an effective design. Decorating a small bathrooms should be practical, comfortable, functional, spacious and relaxing. Effective lighting fixtures and pleasant decorating color schemes create the impression of larger space. Bright light and light colors are simple ideas for bathroom remodeling that add beauty and style to modern bathrooms design without sacrificing the functionality.

Lighting fixtures and light decorating color schemes are inexpensive ideas for bathroom remodeling that dramatically transform small spaces without extensive renovation. Bright light creates an airy feel and light decorating color schemes visually increase small spaces. Arranging a window in a way that allows more natural light into your small interior and provides privacy creates lighter interior design, saves energy and your money. 

Sky lights are great ideas for small bathroom remodeling and making small spaces more comfortable and welcoming.Adding more lighting fixtures to your small bathrooms design along walls, in corners and on the ceiling is another effective way to increase small spaces size and add style to interior design. Bright illumination will make your small interior appear larger that it is.

Another important thing in bathroom decorating ideas is choosing the best bathroom tile ideas.

The House "O" Modern Home Design in Mie Japan

 

Here is a modern home design, entitled "House O" located in Mie Japan. Home design is realized by architect studio based in Nagoya Japan, that was done by architects (Hiroshi Yokozeki, Yuji Shimiz, Kyoko Ikuta).
 The residence features a cleverly integrated garage, that can be observed from the interior. According to the architects, “the sheltered car park serves as a physical extension of the road, drawing in visual focus through a contrasting stark-white finish. a glass partition draws a thin line between the indoor-outdoor boundary, allowing the parked automobiles to be on view from within the house. Pivoting around a central courtyard, the layout is organized in a spiral with varying degrees of privacy throughout. From the entrance, programs such as the bedroom and bathroom are nestled in behind the courtyard, while the kitchen and living area open up around the garage. Corners of the rectangular layout is shaved off to further establish a sense of motion in the circulation. A small loft area over the kitchen serves as a multi-functional platform with a view“.


















Modern Minimalist Interiors

Modern Minimalist Interiors
Modern Minimalist Interiors

Small Living Room Decorating

Small living room decorating
Small living room decorating

Interior Home DesignThe Close

Interior Home DesignThe close
Interior Home DesignThe close

The Wall Is Actually Cut Out

The wall is actually cut out
The wall is actually cut out

Home Interior Design Tips On

Home Interior Design Tips on
Home Interior Design Tips on

Living Room Wall Decor

living room wall decor
living room wall decor

Yada Technology Group X6280 Round Steel Gazebo

Yada Technology Group X6280 Round Steel Gazebo
Features

* Round steel gazebo
* 180g/m2 polyester
* 1.18-Inch by .04-Inch pole
* .79-Inch by .79-Inch by .03-Inch by cross beam
* -1/29-Inch by -1/29-Inch by .03-Inch top beam

18' Four Season Solarium by Gazebo Penguin

18' Four Season Solariumby Gazebo Penguin
41218 Features: -Four season solariums. -Wind panels go down to the bottom for maximum air circulation. -Can also be placed in several positions. -Door can open from the left or the right side. -Solarium is made of extruded aluminum and polycarbonate roof. -Dimensions: 79'' 100'' H x 216'' W x 144'' D.


18' Four Season Solariumby Gazebo Penguin

18' Four Season Solariumby Gazebo Penguin

Oakland Living Mississippi Garden Gazebo - Hammertone Bronze

Oakland Living Mississippi Garden Gazebo - Hammertone Bronze
This is an amazing Gazebo for making home garden more beautiful. A garden will be perfect with elegant gazebo. Oakland Living Mississippi Garden Gazebo - Hammertone Bronze. 5017-HB. Pergolas & Gazebos. This Oakland Living Garden Gazebo is the perfect addition to any setting. Adds beauty and style with functionality to any walk or entrance way. Constructed of durable cast iron with a hardened powder coat finish for years of beauty. Dimensions (In Inches): 108D x 108W x 110H.

Features

  • Quality Tubular Iron Construction
  • Beautiful Hammer Tone Bronze Powder Coated Finish
  • Fade, Chip and Crack Resistant
  • Easy to Clean - Simply Hose or Wipe Down
  • Easy to Follow Assembly Instructions and Product Care Information

Wallmonkeys Peel and Stick Wall Decals - A Gazebo in a Garden - Removable Graphic

Wallmonkeys Peel and Stick Wall Decals - A Gazebo in a Garden - Removable Graphic

WallMonkeys wall graphics are printed on the highest quality re-positionable, self-adhesive fabric paper. Each order is printed in-house and on-demand. WallMonkeys uses premium materials & state-of-the-art production technologies. Our white fabric material is superior to vinyl decals. You can literally see and feel the difference. Our wall graphics apply in minutes and won't damage your paint or leave any mess. PLEASE double check the size of the image you are ordering prior to clicking the 'ADD TO CART' button. Our graphics are offered in a variety of sizes and prices.


  • WallMonkeys are intended for indoor use only.


  • Printed on-demand in the United States Your order will ship within 3 business days, often sooner. Some orders require the full 3 days to allow dark colors and inks to fully dry prior to shipping. Quality is worth waiting an extra day for!


  • Removable and will not leave a mark on your walls.


  • 'Fotolia' trademark will be removed when printed.


  • Our catalog of over 10 million images is perfect for virtually any use: school projects, trade shows, teachers classrooms, colleges, nurseries, college dorms, event planners, and corporations of all size.


  • Wallmonkeys Peel and Stick Wall Decals - A Gazebo in a Garden - Removable Graphic

    Wallmonkeys Peel and Stick Wall Decals - A Gazebo in a Garden - Removable Graphic

    Deluxe Steel Frame Gazebo with Sidewal

    Deluxe Steel Frame Gazebo with Sidewal
    Product Description
    Feature:
    * High quality steel framework
    * a set of beautiful curtain
    * Easy and fast to set up suitable for all kinds of events
    * All necessary Hardware is included.

    Specifications:
    Dimensions: 11'W(3.5m) x 17'L(5.3m) x 9'H(2.65m)
    Frame : Steel
    Top Cover Material: 200 gram PVC
    coated water proof Side Wall Material : 180 gram PA coated water proof
    Canopy Color : Beige
    Pole diameter 1.5"(leg); 0.6"(beam); 0.55"x0.8"(Top)
    Weight : 110
    Packing : Two carton

    Design Home Interior Pictures

    Design Home Interior Pictures
    Design Home Interior Pictures

    Modern Bedroom Ideas for Girls

    Modern bedroom ideas are important in modern home design, what ever the bedroom you want to design, children bedroom, teen bedroom, adult bedroom, young couples bedroom ideas, all of this need some good inspiration and themes. Below picture are special edition of modern bedroom ideas for girls. I hope you will enjoy to visit this site and get some inspiration later. the first step to develop a girl's bedroom is choosing the best bedroom themes, after that, you can designing them with some bedroom colors ideas. Give her a romantic colors. Check this out!
    modern bedroom ideas for girls
    modern bedroom ideas for girls
    Modern bedroom ideas for women